介绍
该整流器适用于电化学工艺,例如电镀,电解,阳极氧化,电解沉积,电解精制等,以提供稳定的直流电源。 该整流器采用高频IGBT作为半导体元件和PWM调制技术。 它采用模块化结构设计,易于扩展输出电流容量,几个整流器模块可以并联连接,多可堆叠安装20个模块,以制造更多电流的单个整流器。 具有独立的电源模块,每个模块可以独立输出或并联输出。并且由韩国500强企业委托的第三方SGS检验机构成功完成了对整流柜的检查和验收。
技术参数
1. 交流输入 | ||
1.1 | 输入交流电源 | 整流器@ AC380V +/- 10%,3相3线60Hz UPS @ AC 110V,1相,60Hz |
2. 直流输出 | ||
2.1 | 额定输出 | 15000A 10V |
2.2 | 输出模式和范围 | 恒流, 额定值10%-100% |
恒压, 额定值10%-100% | ||
2.3 | 占比 | 100% 满载 |
2.4 | 精度 | <1% |
3. 电气特性 | ||
3.1 | 应用 | 电解 NF₃ |
3.2 | 调节模式 | IGBT PWM |
3.3 | 控制 | 控制本地触摸屏控制,无远程控制 |
3.4 | 效率 | 90% @ 10V 15000A |
3.5 | 功率因素 满载 | ≥0.90 @ 9.6V-10V 13000A |
3.6 | 冷却方法(如果使用空气冷却,请指定海拔高度) | 强制空气冷却 |
3.7 | IP等级 | IP30 |
3.8 | 缘等级 | F |
3.9 | 温升 | B |
3.10 | 工作模式 | 连续 |
3.11 | 警报类型 | 声音和视觉警报 (在整流器前面板和触摸面板上) |
4.承受 | ||
4.1 | 初级到次级 | 2000V rms 1min |
4.2 | 初级至PE | 2000V rms 1min |
4.3 | 控制电路至PE | 1500V rms 1min |
4.4 | 次于PE | 1500V rms 1min |
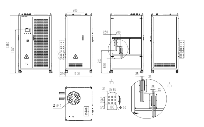
外形尺寸
产品优势
结合应用工艺及技术参数,进行优化的主回路设计、铁磁计算、结构设计等,有效降低EMI,降低损耗,提高转化效率
双通道热备份控制器
同步信号自适应滤波
光纤触发,光时延小,同步效果好,抗干扰能力强
DSP数字控制,响应速度快,控制精度高、可靠性高、便于DCS组网
多达96路的开关量采集
超过100个点的报警信号
高可靠性,经过出口应用验证
结构设计考虑多管并联,均流效果好
防腐蚀处理
国际水平工艺标准
品质过硬,安全保障
53个国家用户验证
国内外有色行业现场可靠运行
世界500强企业的选择
欧美客户高度认可
严格的内部质量管控流程,规范管理,获得国内外客户称赞
高效服务,30年无忧使用
专业的工程师提供及时的售后服务
12个国家本地服务
1小时内反馈
16小时在线服务
24小时手机不关机,陪您到凌晨
4小时内到达现场
多语言服务:中文、英语、西班牙语、俄语、韩语服务